東久留米市小山4丁目 9期 新築一戸建て 全1棟 東京都東久留米市小山4丁目|5,899万円の新築一戸建て|ME不動産城北

TEL.03-6905-9710

営業時間9:00〜18:30

TOPページ
物件検索
新築一戸建て(新築一軒家)
>
東久留米市
>
西武池袋線
東久留米市小山4丁目 9期 新築一戸建て 全1棟

新築一戸建て

東久留米市小山4丁目 9期 新築一戸建て 全1棟

お気に入り
価格 5,899万円 ローンシミュレーション
所在地 東京都東久留米市小山4丁目
この地域周辺の物件を見る
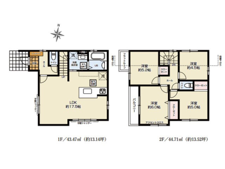
土地面積 111.88m² (33.84坪) 建物面積 88.18m2
築年月 2026年5月築 間取り 4LDK (-)
交通
西武池袋線 清瀬 徒歩13分
西武池袋線 東久留米 徒歩20分
ここがおすすめ

マイホーム探しには、生活費、教育費、老後費、人生の三大支出も加味した、将来の家計を考慮することが大切です。弊社では住宅FPアドバイザーが、お客様の将来設計を見据えたコンサルティングを実施します。

お問い合わせ、資料請求、見学のお申し込みはこちらから

電話をかける(携帯・PHS可)
03-6905-9710
「ホームページを見た」とお伝え下さい。

お問い合わせ番号をお伝えください
RHS-991005960

内見予約
お問合せ

セールスポイント

特徴
  • フローリング
  • システムキッチン
  • シャワー
  • シャワートイレ
  • 室内洗濯機置場
  • コンロ三口
  • 床下収納
  • バルコニー
  • TVドアホン
  • 都市ガス
  • カースペース2台以上
セールスコメント
 


物件概要

採光面 - 構造/階数 木造/地上2階建
建ぺい率 40(%) 容積率 80(%)
駐車場 現況/引渡し -/2026年6月下旬
土地権利 所有権 私道負担面積 -

接道状況 接道: 西 私道 道路幅: 4m 用途地域
第一種低層住居専用地域
セットバック なし 法令上の制限 -
地目 宅地 地勢
建築確認番号 第 HPA-25-14209-1 号 都市計画 市街化区域
取引態様 仲介
情報更新日 2026年05月21日 次回更新日 2026年06月04日
※各種情報と差異がある場合は現況優先となります

学区情報

小学校区
()
中学校区
()
※物件情報の学区情報について
当サイト物件情報に記載されております通学区域(学区)情報は、国土数値情報ダウンロードサービスが提供する小学校区データ【2021年度】及び中学校区データ【2021年度】を元に加工したものですので、記載情報が現在の学区域と異なる場合がございます。
国土数値情報ダウンロードサービスのWEBサイト上で記述通り、データは必ずしも正確とは言えません。また、通学区域(学区)は毎年見直しの対象となりますので、そちらを踏まえ学区情報は参考としてご活用下さい。

お問い合わせ、資料請求、見学のお申し込みはこちらから

電話をかける(携帯・PHS可)
03-6905-9710
「ホームページを見た」とお伝え下さい。

お問い合わせ番号をお伝えください
RHS-991005960

内見予約
お問合せ

この物件でローンシミュレーションする

価格 万円
年利率
ボーナス払い 返済年数
頭金 直接入力する 万円

毎月のご返済額

ボーナス(×年2回)

物件価格

5,899万円
※返済金額はあくまでも目安です。

電話をかける(携帯・PHS可)
03-6905-9710
「ホームページを見た」とお伝え下さい。

お問い合わせ番号をお伝えください
RHS-991005960

内見予約
お問合せ

お問い合わせ

  1. 1
    内容入力
  2. 2
    内容確認
  3. 3
    完了
お問合せ内容必須
【備考欄】
詳細な見学ご希望時間、ご質問、ご希望条件などがございましたらお聞かせ下さい。
(2000文字以内)
お名前必須
メールアドレス必須
※ご記入いただいたメールアドレス宛てに、お問合せ内容の確認メールをお送りいたします。
※Yahoo!メールなどのフリーメールをご利用の場合、迷惑メールフォルダに入る場合があります。
 迷惑メールのフォルダ・設定等をご確認下さい。
電話番号必須
FAX(任意)
※ご入力いただいたお客さまの個人情報は、「個人情報の取扱いについて」に基づき適正に取り扱います。必ずお読みになり、同意の上お問い合わせください。

お気軽にお問い合わせください

03-6905-9710
物件番号 RHS-991005960
※「ホームページを見た」
とお伝え下さい。

お役立ち機能

この物件を
携帯で確認!